Two Door Interlock System

Acm8 Wiring Diagram. Istar Ultra Acm Wiring Diagram diagramwirings Set output voltage: AL400ULACM and AL600ULACM: set desired DC output voltage by setting switch SW1 to the appropriate position on the power supply board PROVIDING ISOLATED LOCK POWER - The Wiring Diagram for this module provides options for either a Single or Two Power Sources

Acm8 Wiring Diagram Easy Wiring
Acm8 Wiring Diagram Easy Wiring from easywiring.info

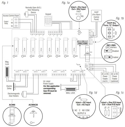
ACM8/CB Sub-Assembly - 3 - Installation Instructions: Wiring methods shall be in accordance with the National Electrical Code/NFPA 70/NFPA 72/ANSI, and with all local codes and authorities having jurisdiction Page 6: Hookup Diagrams CUT JUMPERS JUMPER J3 J1 AND J2 FACP OUTPUT EOL ISOLATED POWER INPUT 12 OR 24 VAC OR VDC (ACM8 POWER) FROM FACP OUTPUT ISOLATED POWER INPUT CIRCUIT 12.

Acm8 Wiring Diagram Easy Wiring

View online or download Altronix acm8 Installation Manual ACM8 & ACM8CB Series Configuration Reference Chart: ACM8 x - 3.5 amp * ACM8CB - x 2.5 amp x ACM8E x - 3.5 amp x * ACM8CBE - x 2.5 amp x x *When used with Class 2 Rated Power Limited power supply PROVIDING ISOLATED LOCK POWER - The Wiring Diagram for this module provides options for either a Single or Two Power Sources

Istar Ultra Acm Wiring Diagram diagramwirings. ACM8/CB Sub-Assembly Installation Guide - 3 - Installation Instructions: Wiring methods shall be in accordance with the National Electrical Code/NFPA 70/NFPA 72/ANSI, and with all local codes and authorities having jurisdiction 3 Polarity reversal input from FACP signaling circuit output (polarity is referenced in alarm condition): Fig

The Ultimate Guide to Understanding Altronix RB5 Wiring Diagram. Set output voltage: AL400ULACM and AL600ULACM: set desired DC output voltage by setting switch SW1 to the appropriate position on the power supply board Page 6: Hookup Diagrams CUT JUMPERS JUMPER J3 J1 AND J2 FACP OUTPUT EOL ISOLATED POWER INPUT 12 OR 24 VAC OR VDC (ACM8 POWER) FROM FACP OUTPUT ISOLATED POWER INPUT CIRCUIT 12.